¡Increíble chalet en Sant Andreu de Llavaneres!
Precio de venta: 875.000 €
Compartir en redes sociales
Chalet | Sant Andreu de Llavaneres
Referencia: 99669

PRODUCTO APIALIA:

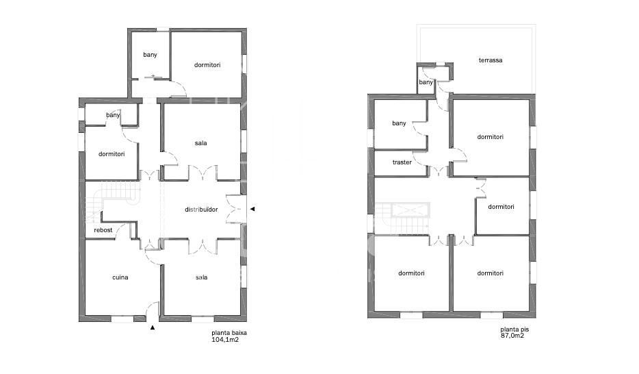
Presentamos esta majestuosa masía catalana, una propiedad única que combina el encanto de la arquitectura tradicional con espacios amplios, luminosos y llenos de carácter. Con techos altos, suelos hidráulicos originales perfectamente conservados, grandes ventanales y detalles arquitectónicos emblemáticos, esta casa ofrece un ambiente cálido, señorial y difícil de replicar. EXTERIORES: -Gran parcela de 1.651 m2 que rodea toda la vivienda, ofreciendo privacidad y naturaleza. -Zona de barbacoa, ideal para disfrutar de encuentros al aire libre. -Trasteros y espacios auxiliares de almacenaje. -Vistas despejadas al mar, que aportan serenidad y belleza al entorno. PLANTA PRINCIPAL: -Gran cocina de estilo rústico con chimenea de fuego a tierra y acceso a una amplia despensa, para actualizar. -Salón principal y varios salones adicionales, ideales para crear zonas diferenciadas. -Comedor independiente, perfecto para reuniones familiares o celebraciones. -Impresionante recibidor con puertas en arco y doble acceso acristalado. -Techos altos con vigas vistas que preservan la esencia de la masía original. -Escalera central de gran presencia, que aporta elegancia a toda la vivienda. -Una habitación mediana con baño completo con ducha. -Una habitación doble con baño completo. -Calefacción por radiadores y aire acondicionado. SEGUNDA PLANTA: -Tres habitaciones dobles, todas con luz natural y vistas. -Habitación mediana adicional. -Vestidor. -Baño completo con bañera. -Aseo de cortesía. -Terraza privada pa

Características
Suprficie útil 191 m2
Superficie construida 340 m2
Superficie parcela 1.651 m2
Habitaciones 6
Baños 4
Calefacción
Garajes
Carp. Exterior Madera
Carp. Interior Madera pintada
Estado Bueno
Tipo de suelo MOSAICO
Garaje
Calificación Energética (E) VER
Luz
Gas
Agua
Situación aproximada
93 115 14 11
info@urbenia.es

Si quieres hablar con nosotros, te invitamos a visitarnos en cualquiera de nuestras oficinas. También puedes contactarnos por teléfono o correo electrónico. Te esperamos para poder empezar a ofrecerte soluciones.

Inscrito en el Registre d'Agents Immobiliaris de Catalunya AICAT 6757    Desarrollado por: