Piso rehabilitado a estrenar con balcón en El Molino – Poble Sec
Precio de venta: 380.000 €
Compartir en redes sociales
Piso | Barcelona - Sants-Montjuic
Referencia: 99593

Estrena tu nuevo hogar en el corazón de Poble Sec

Te presentamos esta vivienda completamente reformada, a estrenar, lista para que seas tú quien la inaugure. Porque no hay nada como la ilusión de abrir la puerta y saber que todo es nuevo, que cada rincón empieza contigo.

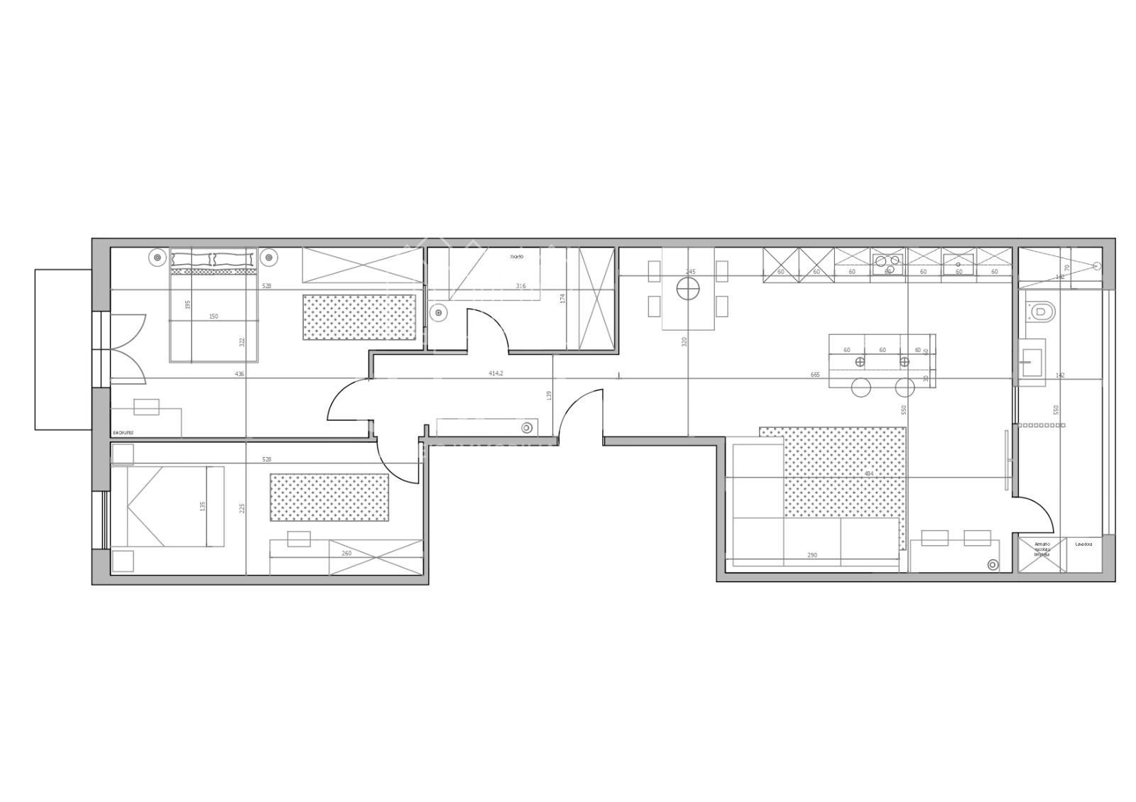
La vivienda destaca por su espectacular luminosidad y su fantástica distribución. Al entrar, encontramos un amplio y acogedor salón-comedor con cocina americana e isla central, un espacio moderno, funcional y perfecto para disfrutar tanto del día a día como de reuniones con amigos. La cocina, de diseño actual, ha sido pensada al detalle para combinar estética y practicidad.

Dispone de:

🛏 Tres habitaciones: una doble con salida a balcón y dos individuales, ideales como dormitorios, despacho o vestidor.

🚿 Baño completo con ducha, de líneas modernas.

🌿 Galería, aportando un espacio extra muy práctico.

🌡 Aire acondicionado con bomba de frío y calor.

💡 Iluminación LED en toda la vivienda.

🌳 Suelo de parquet que aporta calidez y elegancia.

Se trata de un segundo piso real sin ascensor, ubicado en una típica finca del barrio, con todo el encanto de la zona.

📍 Situado en el corazón de Poble Sec, uno de los barrios más auténticos y vibrantes de Barcelona. A pocos pasos de la emblemática avenida del Avinguda del Paral·lel y del histórico teatro El Molino, rodeado de una oferta gastronómica espectacular, restaurantes con encanto, ocio nocturno, teatros y esa vida de barrio de toda la vida que lo hace tan especial.

Una vivienda perfecta para quien busca diseño, luz, ubicación y la emoción de estrenar hogar en una de las zonas con más personalidad de la ciudad.

¿Te imaginas empezando aquí tu nueva etapa? ✨


UBICACIÓN Y ALREDEDORES :

Barcelona es una ciudad cosmopolita, abierta, donde la cohesión social es una realidad. La capital catalana se encuentra entre las mejores ciudades del mundo en las clasificaciones de calidad de vida, seguridad y equidad. Barcelona es una ciudad donde vivir bien es fácil. Una ciudad saludable, de clima mediterráneo, con zonas verdes y alimentos de proximidad. Vivir en Barcelona es garantía de una buena calidad de vida.Barcelona tiene un estilo de vida propio que la hace única en todo el mundo. Su carácter mediterráneo invita a los visitantes a ir a los barrios y conocer a su gente, visitar las playas y los espacios naturales y disfrutar del ocio con una gran oferta cultural, gastronómica y comercial.

La ciudad tiene numerosas zonas verdes, parques y jardines repartidos por todo el territorio. Muy cerca están las 8.000 hectáreas del parque de Collserola, uno de los espacios naturales más importantes del mundo al lado de una ciudad.


¿Estás pensando en vender tu vivienda? ¡Estamos aquí para ayudarte!

En Urbenia Serveis Immobiliaris, somos tu agencia inmobiliaria 360 grados. Contamos con la infraestructura y la experiencia necesarias para ofrecerte todos los servicios relacionados con la venta y alquiler de viviendas.

Nuestro potente equipo comercial está respaldado por una estructura sólida con departamentos especializados en cuatro grandes áreas: finanzas, imagen y comunicación, obra nueva y activos bancarios. Además, podemos ayudarte a gestionar la hipoteca de tus compradores, facilitando aún más el proceso de venta.

No dudes en contactarnos o visitarnos en nuestras oficinas en Mataró, Arenys de Mar o Pineda de Mar. Estamos aquí para ofrecerte la mejor asistencia en la venta de tu propiedad.

¡Esperamos tu contacto para empezar a trabajar juntos y lograr la mejor venta para ti!

Nota: Gastos de Notaría, Registro e Impuestos no incluidos en el precio. La parte compradora no pagará honorarios a esta inmobiliaria; los asume en su totalidad la parte vendedora.

Características
Suprficie útil 79,34 m2
Superficie construida 90 m2
Habitaciones 3
Baños 1
Cocina Amueblada
Calefacción Eléctrica
Altura/Planta 1
Carp. Exterior PVC
Carp. Interior Madera lacada
Estado Muy bueno
Tipo de suelo Parquet
Aire acondicionado
Calificación Energética (E) VER
Luz
Agua
93 115 14 11
info@urbenia.es

Si quieres hablar con nosotros, te invitamos a visitarnos en cualquiera de nuestras oficinas. También puedes contactarnos por teléfono o correo electrónico. Te esperamos para poder empezar a ofrecerte soluciones.

Inscrito en el Registre d'Agents Immobiliaris de Catalunya AICAT 6757    Desarrollado por: